Fotoğraflarını gördüğünüz Hacı İsmail Mahallesindeki dükkanın Mesut Akbıyık’ın prensi Karesi’nin imardan sorumlu Belediye Başkan Yardımcısı Kemal Aydemir ve ailesine ait olduğu öne sürülüyor.
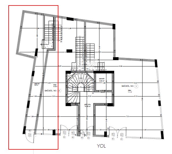
Haber Merkezimizin yaptığı araştırmalara göre mimari uygulama projesine istinaden belirtilen ve ön cephede bulunması gereken yangın holü, yangın çıkış kapısı dükkan ile arasındaki duvar kaldırılarak dükkana dahil edilmiştir.

İNSANLAR CAYIR CAYIR YANSIN MI?
Bolu’daki talihsiz otel yangını henüz zihinlerimizdeki tazeliğini korurken, Kemal Aydemir’e ait olduğu iddia edilen dükkanın üstündeki 10 dairede olası bir yangın çıkması durumunda yaşanılacakları düşünmek bile istemiyoruz!
Karesi Belediyesi şehrimizdeki bazı otellere ve düğün salonlarına Yangın Yönetmeliği ile ilgili eksikleri sebebiyle ağır cezalar yazarak mühürlemekte ve binaların Yangın Yönetmeliğine uygun hale getirilmesi talimatını vermektedir.

AKBIYIK’A YAKIŞAN EN YAKININA BİLE ACIMAMAKTIR!
Şimdi Karesi Belediyesi’nin çalışkan başkanı Mesut Akbıyık’a düşen, Başkan Yardımcısı Kemal Aydemir’e çifte standart uygulamayıp benzeri işletmelere yaptığı gibi aynı şekilde önce gerekli para cezasını kesmek akabinde dükkanın mühürlenerek Yangın Yönetmeliğine uygun hale getirilmesini sağlamaktır.
Haydi Akbıyık, bütün Balıkesir hazreti Ömer adaletini görmek istiyor!
HABER MERKEZİ

